- 新聞資訊
- 西瑪新聞
- 行業資訊
西安西瑪電機在食品級輸送在西安西瑪電機,我們不斷致力于技術創新和材料改進,成
淺談西瑪電機近年的變革之品牌與形象的轉變,為西安西瑪電機帶來了市場的廣泛認可
深入解析西安泰富西瑪電機西瑪電機憑借其強大的技術研發能力、卓越的產品質量、完
西安西瑪YE5高效電機深西安西瑪電機生產的YE5高效三相異步電動機具有性能優
電控學院與西安泰富西瑪電電控學院與西安西瑪電機有限公司產學研聯合工作室的建立
西安西瑪電機與西北工業大西安西瑪電機有限公司作為一家傳統電機生產企業,對領域
泰富西瑪電機
配套電柜
電機配件
YKK系列高壓三相異步電機西安泰富西瑪YKK系列(H355-1000)高壓三相異步電機可作驅動
Y2系列緊湊型高壓異步電機西安泰富西瑪?Y2系列(H355-560)6KV緊湊型高壓異步電機可
YE3系列高效節能電機西安泰富西瑪電機生產的YE3系列高效節能電機達到了國標二級能效標準,
Z4系列直流電機西安泰富西瑪Z4系列直流電動機比Z2、Z3系列具有更大的優越性,它不
Z2系列小型直流電機西安泰富西瑪Z2系列電機為一般工業用小型直流電機,其電動機適用于恒功
ZTP型鐵路機車動車用直流輔助西安泰富西瑪ZTP系列西瑪電機應能滿足鐵路機車動車用直流輔助電機通用


YE5系列超高效三相異步電動機
產品簡介:西安泰富西瑪電機生產的YE5系列超高效三相異步電動機具有性能優良、高效、節能,溫升裕度大,壽命長,性能好,振動 小,啟動性能優良,外形美觀,可靠性能高的優點。常用于驅動水泵、風機、壓縮機、傳送機和……
購買咨詢
技術服務
- 產品說明
- 技術參數
- 常見問題
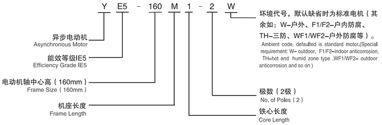
YE5系列超高效三相異步電動機型號說明
YE5系列超高效三相異步電動機概述
YE5 series Ultra-high efficiency three-phase asynchronous motor
YE5系列超高效三相異步電動機是我公司自主研發的超高效節能三相異步電動機,冷卻方式為:IC411,電機性能滿足 GB/T 755《旋轉電動機定額和性能》,效率值符合GB 18613-2020中1級能效標準,并與國際標準IEC 60034-30《單速三相籠型感應電動機能效分級》中的IE5一致。本系列產品能夠完全取代丫、YGM、 YGM2、YE2、YE3、YE4系列低壓三相異步電動機。
YE5系列超高效三相異步電動機具有性能優良、高效、節能,溫升裕度大,壽命長,性能好,振動 小,啟動性能優良,外形美觀,可靠性能高的優點。常用于驅動水泵、風機、壓縮機、傳送機和其他傳動 機械被應用在節能環保改造、國家水利等項目。
This series of motors are Ultra-high efficiency and energy saving three-phase asynchronous motors independently developed by our company. Cooling method is IC411, meeting GB/T 755 "Rotating Electrical Machines- Ratings and Performance" and JB/T13299-2017 "Specification for YE5 series (IP55) High Efficiency Three-phase Induction Motor (Frame size 63-355)". Its efficiency value complies with the level 1 energy efficiency standard in GB 18613-2012 and is consistent with the IE4 in the international standard IEC 60034-30 "Energy Efficiency Class of Single-speed Three-phase Cage Induction Motors". This series of products can completely replace the obsolete products of low-voltage three-phase asynchronous motors,like Y, YGM, YGM2, YE2, YE3, YE4 series .
This series of motors have the advantages of excellent performance, high efficiency, energy saving, large temperature rise margin, long life,low vibration, excellent starting performance, nice appearance and high reliability, which are commonly used to drive water pumps, fans, compressors, conveyors and other transmission machinery in energy conservation and environmental protection transformation projects, national water conservancy projects,etc.
轉載請說明來自西安泰富西瑪電機(西瑪電機集團)官方網站:http://m.ls163.net/dianji/dianji_gaoxiao410.html

YE5系列超高效三相異步電動機概述
YE5 series Ultra-high efficiency three-phase asynchronous motor
YE5系列超高效三相異步電動機是我公司自主研發的超高效節能三相異步電動機,冷卻方式為:IC411,電機性能滿足 GB/T 755《旋轉電動機定額和性能》,效率值符合GB 18613-2020中1級能效標準,并與國際標準IEC 60034-30《單速三相籠型感應電動機能效分級》中的IE5一致。本系列產品能夠完全取代丫、YGM、 YGM2、YE2、YE3、YE4系列低壓三相異步電動機。
YE5系列超高效三相異步電動機具有性能優良、高效、節能,溫升裕度大,壽命長,性能好,振動 小,啟動性能優良,外形美觀,可靠性能高的優點。常用于驅動水泵、風機、壓縮機、傳送機和其他傳動 機械被應用在節能環保改造、國家水利等項目。
This series of motors are Ultra-high efficiency and energy saving three-phase asynchronous motors independently developed by our company. Cooling method is IC411, meeting GB/T 755 "Rotating Electrical Machines- Ratings and Performance" and JB/T13299-2017 "Specification for YE5 series (IP55) High Efficiency Three-phase Induction Motor (Frame size 63-355)". Its efficiency value complies with the level 1 energy efficiency standard in GB 18613-2012 and is consistent with the IE4 in the international standard IEC 60034-30 "Energy Efficiency Class of Single-speed Three-phase Cage Induction Motors". This series of products can completely replace the obsolete products of low-voltage three-phase asynchronous motors,like Y, YGM, YGM2, YE2, YE3, YE4 series .
This series of motors have the advantages of excellent performance, high efficiency, energy saving, large temperature rise margin, long life,low vibration, excellent starting performance, nice appearance and high reliability, which are commonly used to drive water pumps, fans, compressors, conveyors and other transmission machinery in energy conservation and environmental protection transformation projects, national water conservancy projects,etc.
轉載請說明來自西安泰富西瑪電機(西瑪電機集團)官方網站:http://m.ls163.net/dianji/dianji_gaoxiao410.html
西安泰富西瑪電機(西安西瑪電機集團)慎重承諾:西安西瑪電機所出售的電機均為正宗泰富西瑪牌電機,開17%增值稅發票,發票均以快遞形式寄出,不隨產品運送,以免丟失。用戶可憑電機購買合同及西瑪電機產品發票,可享受一年期三包售后服務。
西安西瑪電機為您提供具有競爭力的電機價格和良好的售后服務政策,請您放心購買!
聲明:我廠出售的所有電機產品均開17%增值稅發票。如有西瑪電機的經銷商以不開發票打折優惠、免運費、贈送電機配件、發票用完等理由拒絕向買方提供發票的,請廣大新老用戶謹慎購買。